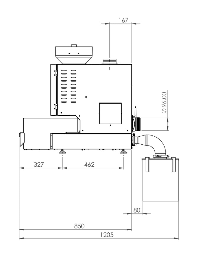
P3000 installation drawings
Detailed dimensions of the P3000 for installation
This page includes detailed diagrams of the P3000 to help with installation. For full installation requirements, please see our installation and technical specifications guide.
Isometric view

Front elevation

Rear elevation

Side elevation
Plan
